3 Bedroom 2 Bathroom Villa - No Strata Levies!
Hidden away in a quiet cul-de-sac and in a small group of 3, you will find this beautifully maintained 2010 built 3 Bed x 2 Bath strata home that's vacant and ready to move in!
This is your opportunity to secure your new home that strikes the perfect balance for anyone looking for a property that is easy to maintain and where you can enjoy a lock and leave lifestyle, and without compromising on style, quality and living space.
Internal Features:
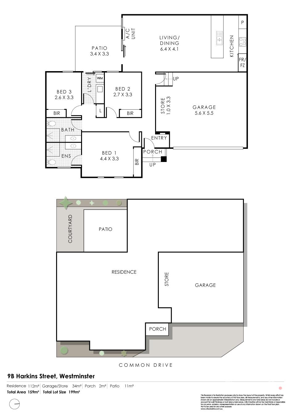
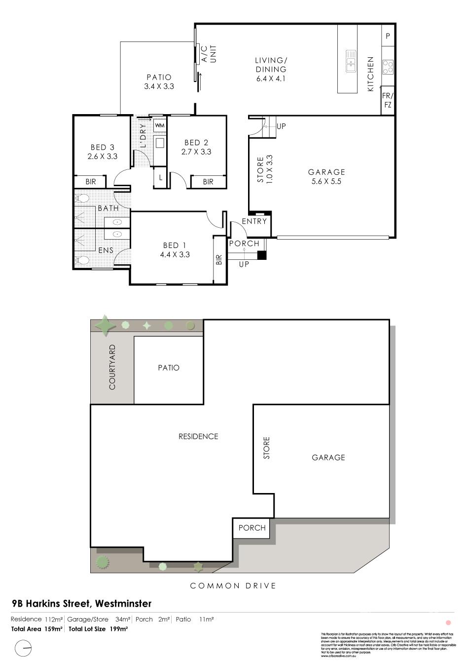
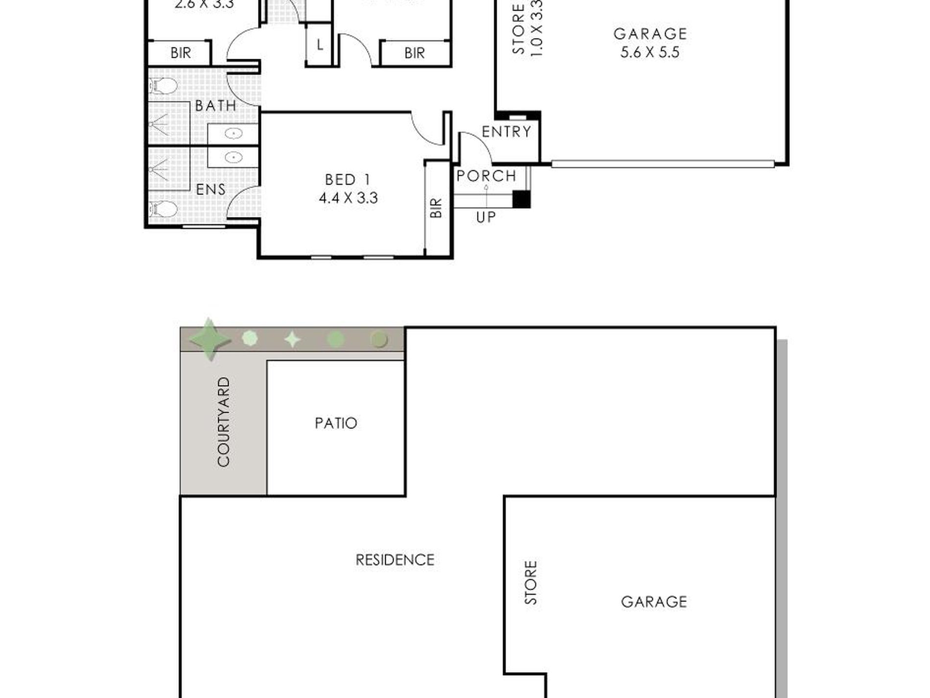
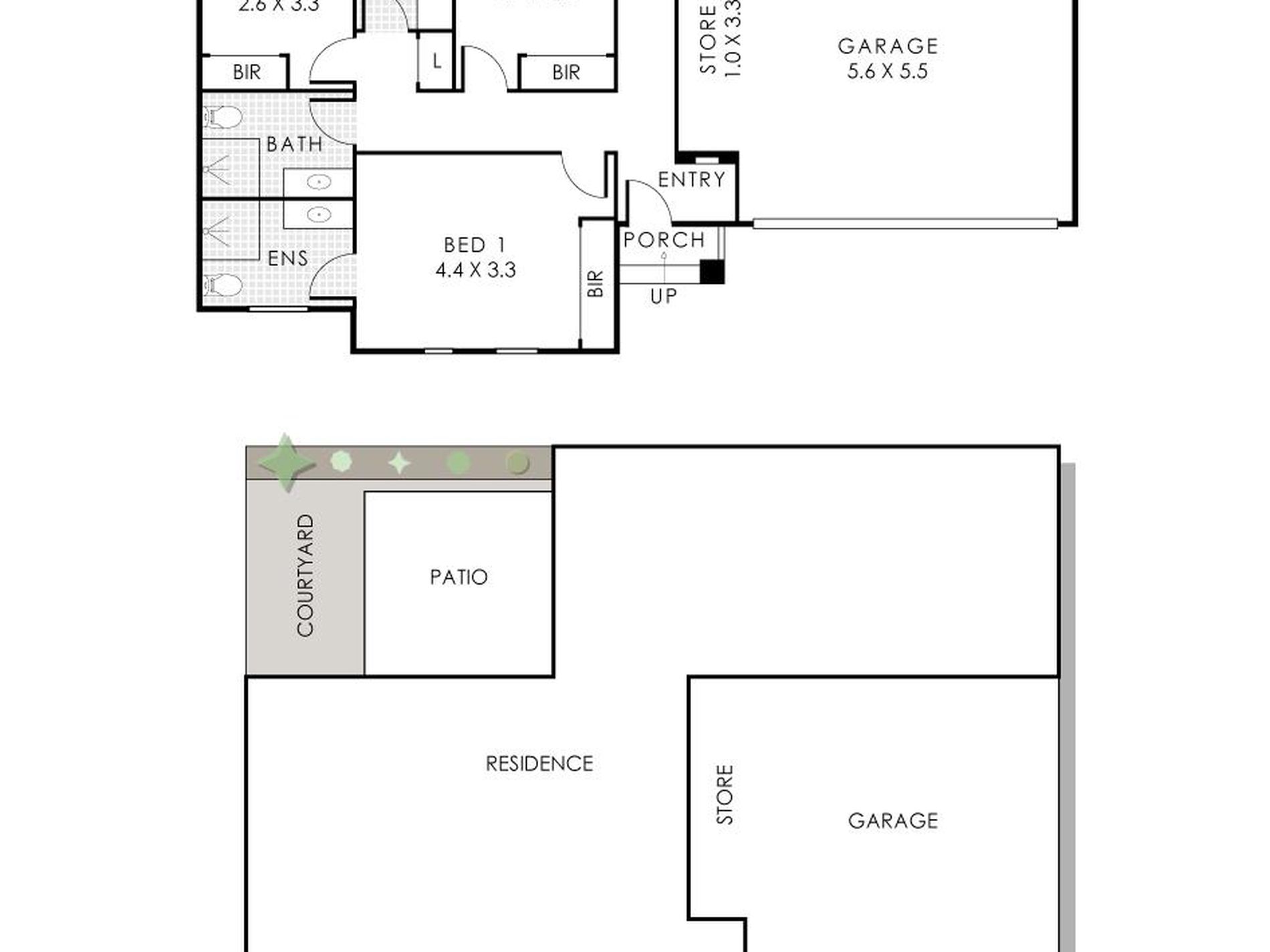
• Great floor plan with the bedrooms all conveniently situated in their own separate zone away from the living area
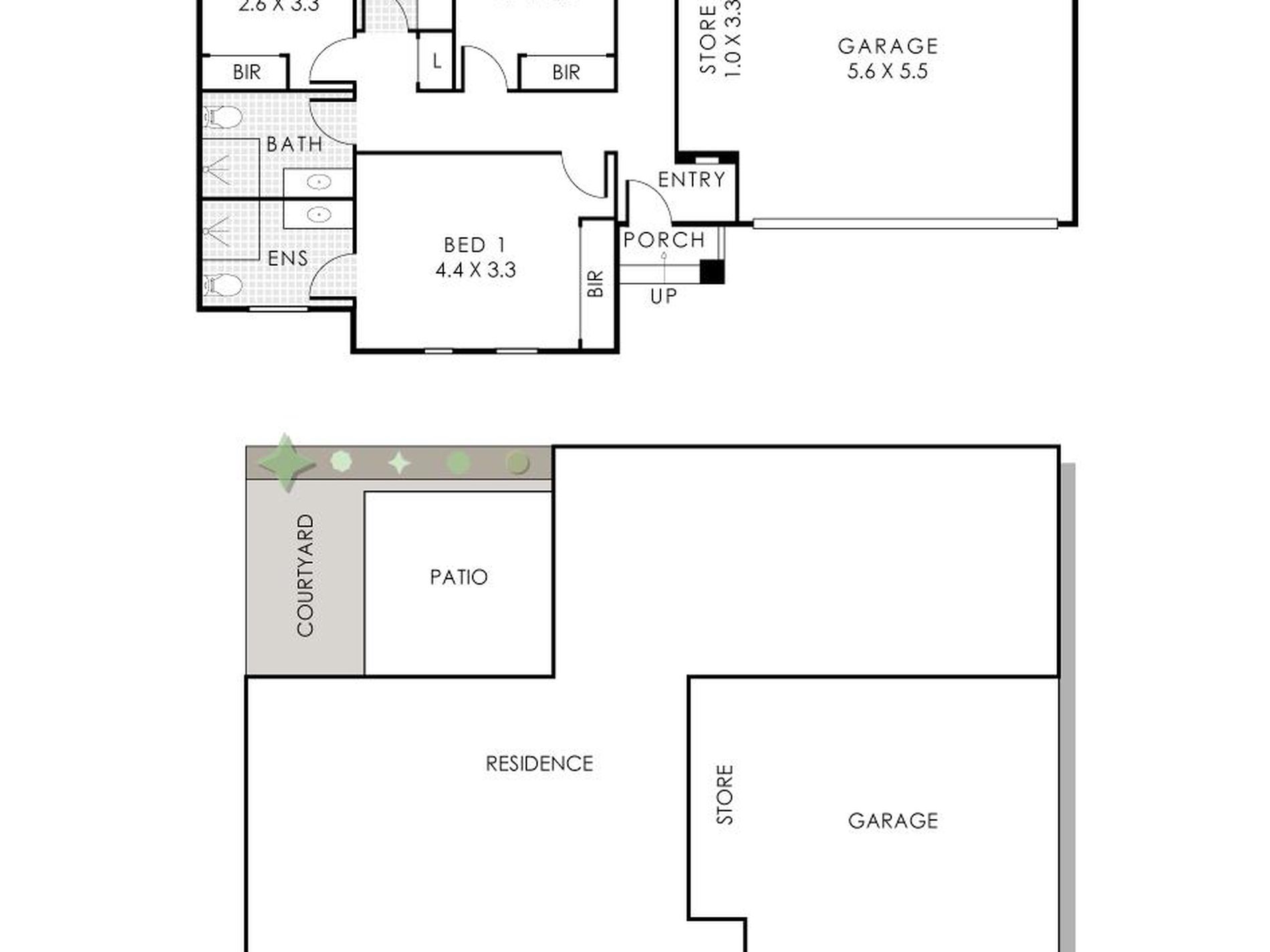
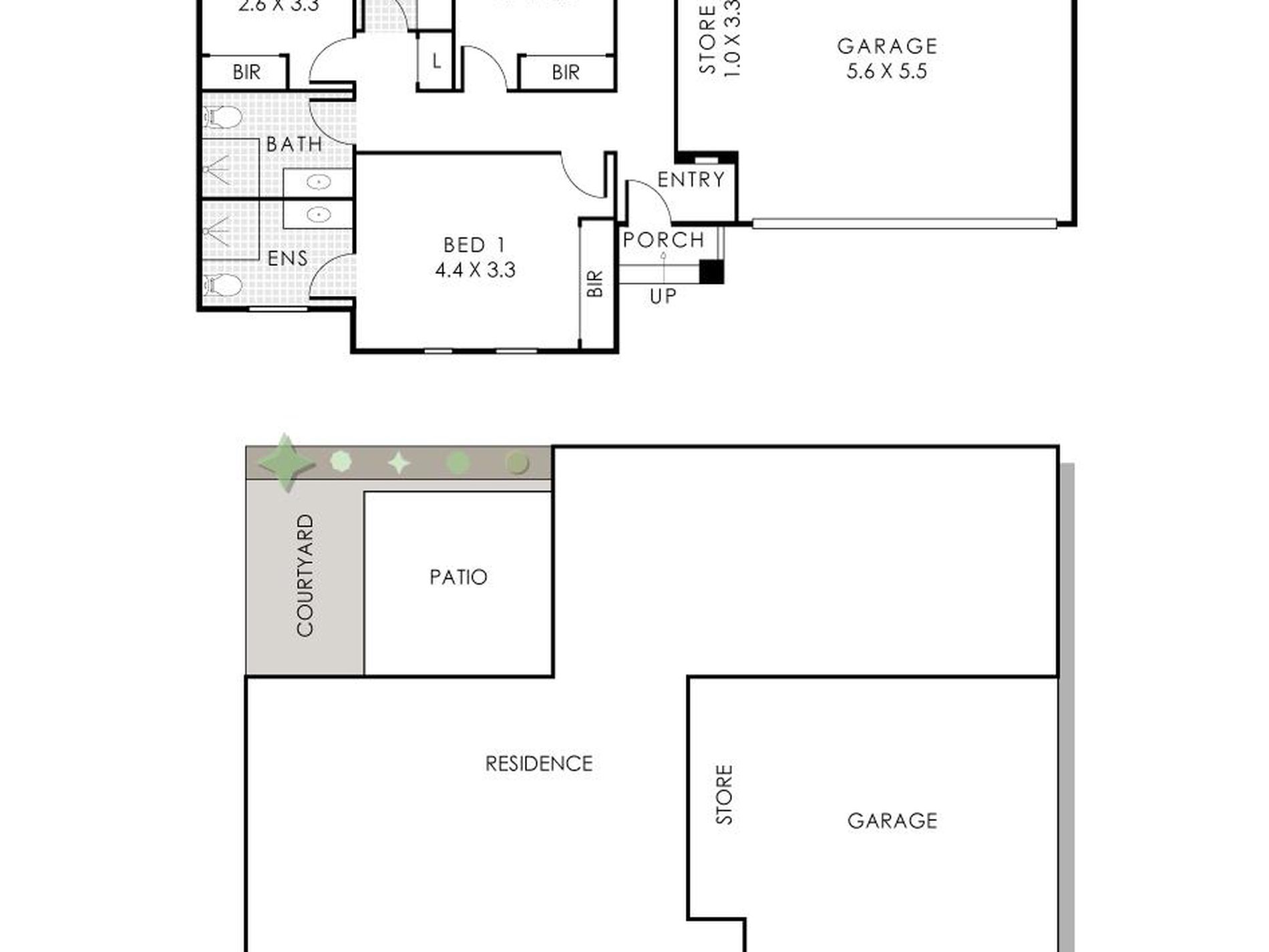
• Main Bedroom - Large enough to accommodate a King size bed and plenty of cupboard space behind the sliding mirrored robes
• Bedrooms 2 & 3 - Both include sliding built in robes
• Superb kitchen with huge breakfast bar, stainless steel appliances, dishwasher, gas cooktop and lots of cupboard space
• Large open plan and tiled living/dining area
• Split system air conditioning to the living, dining and kitchen area
• Neutral tiling and finishes to the ensuite and main bathroom
• Large laundry with direct access to the courtyard and drying area
• Freshly painted walls internally and externally
External & Other Features:
• Small group of 3 homes
• Double lock-up garage
• Store room area to garage
• Direct access into the home from the garage
• Large private courtyard with an alfresco patio for all year round living and entertaining
• Gas hot water system
Outgoings:
• Council Rates: $1,721.00 per annum
• Water Rates: $1,255.00 per annum (Approx.)
• Strata Levy: N/A
• Shared Building & Common Property Insurance with 9A & 9C: $800.00 per annum (Approx.)
Contact Con Paioff on 0407 947 449 or via email at [email protected] for more information or to book a viewing.
Disclaimer: All information provided is deemed reliable but is not guaranteed and should be independently verified. Please note, that some images have been modified and some virtual furniture and fittings have been used for illustration purposes only.
Features
- Outdoor Entertainment Area
- Remote Garage
- Courtyard
- Secure Parking
- Built-in Wardrobes
- Dishwasher
















